Studium Masriera

Bailén, 70

Abandonado

GoogleMaps

En 1884, dos joyeros de la familia Masriera erigieron un taller en el centro de la entonces reciente traza Cerdà, desde 1860. Siendo apenas la segunda edificación de la manzana, la construcción, con la apariencia de un templo romano, dominaba el espacio. Poco antes, en el espacio del foro de la antigua Barcino, cerca de la Plaza Sant Jaume, se habían descubierto los restos del antiguo Templo de Augusto, del que adopta el orden corintio del pórtico. Dos otros referentes del edificio son, arquitectónicamente, la Maison Carrée de Nimes y, conceptualmente, el Taller de Marià Fortuny en Roma. 
 
El autor del proyecto fue el arquitecto Josep Vilaseca i Casanovas, que ha pasado a la historia por construir otros edificios tan emblemáticos para la ciudad como el Arco del Triunfo, en el Paseo Lluís Companys, o La casa de los Paraguas, en Las Ramblas. Vilaseca diseñó un edificio neoclásico, un templo con un pórtico hexástilo; con seis columnas corintias y un frontón triangular, sobre un podio de 1'5m de altura. El templo estaba custodiado por dos esculturas encargadas a Josep Reynés, una de Marià Fortuny, y otra de Eduardo Rosales. Actualmente, estas esculturas han desaparecido. En sus orígenes, la reja de acceso al edificio era una reproducción exacta a la del templo de Erecteión de Atenas.
Opener

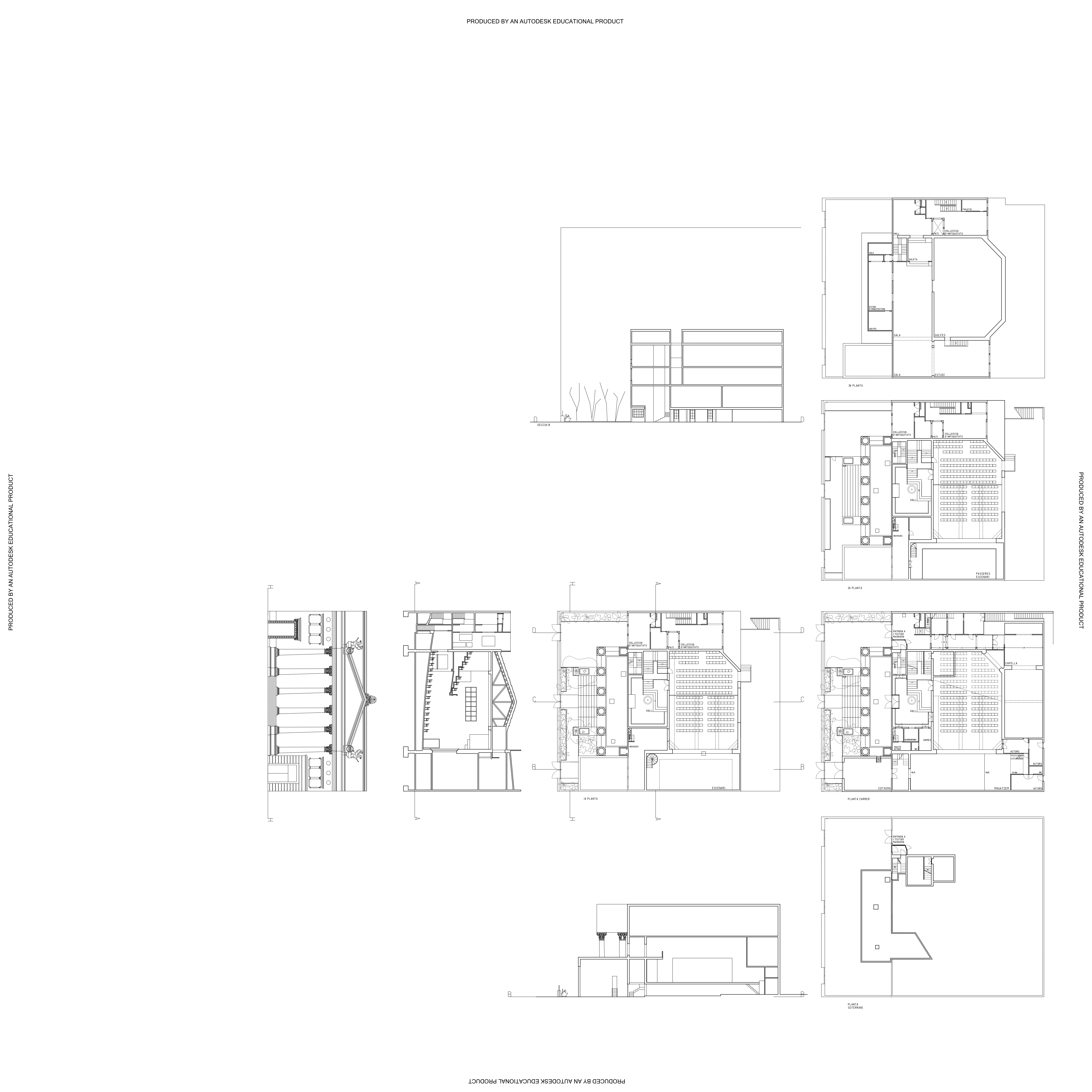
PLANOS

HISTORIA

En este primer momento, el templo funcionaba como taller de orfebrería, pintura y escultura, y como almacén de antigüedades y reliquias que la familia coleccionaba. Con el tiempo, el templo fue adquiriendo nuevos usos, lo que supuso la aparición de nuevos volúmenes, como por ejemplo las naves laterales de principios del siglo XX. 
 
Uno de los herederos, Lluís Masriera i Rosés, que sentía una gran pasión por el teatro, reformó el espacio construyendo una sala. Hasta el franquismo estuvo en funcionamiento como un teatro privado con una compañía propia, “Belluguet”, fundada en 1921 por algunos miembros de los Masriera y amigos suyos. El Teatro Studium, como se le llamó, acogía además representaciones de grandes artistas a nivel europeo, y tuvo un eco internacional. El mismo Lluís Masriera fue invitado a la Exposición Internacional de Teatro de Nueva York de 1925. El teatro, entre otros, presenció la primera lectura de la obra Doña rosita la soltera o el lenguaje de las flores, de Federico García Lorca de la mano del mismo autor, en 1935. 
 
La Guerra Civil detuvo la mayoría de la actividad en el edificio, haciendo que desapareciese la compañía “Belluget”. El teatro y sus representaciones se clausuraron, pero en 1940 se reanudó la actividad teatral bajo el nombre de "Teatro de los Artistas".

Finalmente, el templo fue heredado por una descendiente que decidió tomar los hábitos en la congregación de 
monjas de clausura de la Pequeña Compañía del Corazón Eucarístico de Jesús, una orden no reconocida por el Vaticano. Al edificio original, cada vez menos reconocible por los cambios de usos que había sufrido, se añadió una capilla en la parte posterior, celdas para las monjas y habitaciones para las novicias. Hasta entonces, el templo se había abierto a un público muy limitado, pero con las religiosas como propietarias, el cierre fue drástico. 

En los años 90 la propiedad se abrió al barrio, ofreciendo actividades de propias de ocio y de catequesis. Se ofrecían talleres diversos, entre los que algún de teatro. Aunque ahora en el teatro y las salas contiguas encontramos anuncios y material propio de estas actividades; como juguetes, máscaras, disfraces, elementos de escenografía y de artes plásticas. 
Con la entrada del nuevo milenio, las monjas fueron envejeciendo y la actividad fue disminuyendo hasta cerrarse nuevamente. En 2009, el edificio fue cedido a la Fundación Pere Relats. Pese al hermetismo del lugar, la gente del barrio estima el templo de los Masriera y esperan poder recuperar el espacio. Los propietarios encontraron un comprador, y estamos pendientes de las decisiones del nuevo ayuntamiento de Barcelona, ??para ver si el edificio se cederá a la ciudad, o irá a manos de una entidad privada.
Opener

+ INFO

Bibliografia

Arxiu Municipal Contemporani de Barcelona, expedient 14898 (OP).  
“Una nueva sala de espectáculos, “El Studium” Masriera, Barcelona Atracción (1933), núm. 262. 
“Teatro Studium en Barcelona. Arq. J. Masriera”, Nuevas Formas (1935-1936), núm. 8.  
Bletter, Rosemarie. El arquitecto Josep Vilaseva y Casanovas: sus obras y dibujos (1977). Barcelona: Publicacions COACB, La Gaya Ciencia.

Enlaces


Redactora: Gina Surià